Projet de construction d'une maison 123.35 m² avec terrain à FOUGUEYROLLES (24)
Projet de construction d'une maison 123.35 m² avec terrain à FOUGUEYROLLES (24)
Description
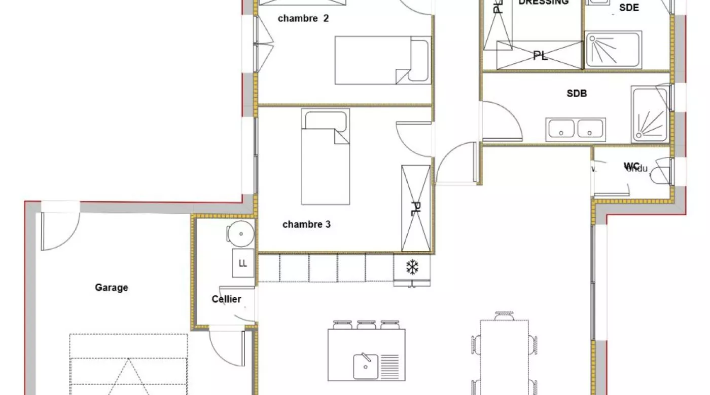
A FOUGUEYROLLES sur un terrain de 50560 m², Les Villas Girondines vous propose de réaliser cette maison neuve d'une surface de 123.35 m² habitables avec 4 chambres.
Les Villas Girondines vous propose les prestations suivantes :
- Plan sur-mesure et personnalisé de 2 à 6 chambres
- Mode de chauffage au choix
- Grands choix d'équipements et de prestations
- Matériaux de qualité selon les normes en vigueur
- Accompagnement dans le choix et l’acquisition du terrain
- Construction conforme à la nouvelle RE 2020
Demandez une étude gratuite et personnalisée de votre projet de construction !
A FOUGUEYROLLES sur un terrain de 50560 m², Les Villas Girondines vous propose de réaliser cette maison neuve d'une surface de 123.35 m² habitables avec 4 chambres.
Les Villas Girondines vous propose les prestations suivantes :
- Plan sur-mesure et personnalisé de 2 à 6 chambres
- Mode de chauffage au choix
- Grands choix d'équipements et de prestations
- Matériaux de qualité selon les normes en vigueur
- Accompagnement dans le choix et l’acquisition du terrain
- Construction conforme à la nouvelle RE 2020
Demandez une étude gratuite et personnalisée de votre projet de construction !
Prix avec assurance dommages-ouvrage comprise, hors VRD, terrain viabilisé, frais de notaire non compris, frais divers non compris. Terrain sélectionné et vu pour vous sous réserve de disponibilité et au prix indiqué par notre partenaire foncier. Conditions et visuels non contractuels.
En bref
- Modèle présenté : JASMIN-4CH123
- Surface : 123.35 m²
- Pièces : 5
- Chambres : 4
- Nb salle de bains : 2
- Garage : 20.14 m2
- Commune : 33220 Fougueyrolles
- Surface terrain : 50560 m²
- En lotissement : non
- Prix : 257 226 €
Demander une étude gratuite personnalisée


