Projet de construction d'une maison 87 m² avec terrain à LE HAILLAN (33)
Projet de construction d'une maison 87 m² avec terrain à LE HAILLAN (33)
Description
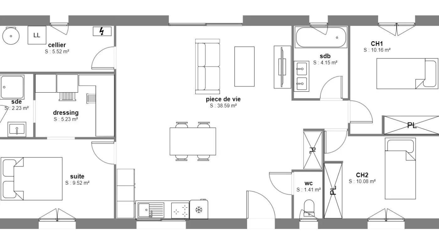
A LE HAILLAN sur un terrain de 570 m², Les Villas Girondines vous propose de réaliser cette maison neuve d'une surface de 87 m² habitables avec 3 chambres.
Les Villas Girondines vous propose les prestations suivantes :
- Plan sur-mesure et personnalisé de 2 à 6 chambres
- Mode de chauffage au choix
- Grands choix d'équipements et de prestations
- Matériaux de qualité selon les normes en vigueur
- Accompagnement dans le choix et l’acquisition du terrain
- Construction conforme à la nouvelle RE 2020
Informations du terrain : Terrain plat situé au calme, proche des commodités et des écoles. Le terrain est viabilisé et cloturé.
Demandez une étude gratuite et personnalisée de votre projet de construction !
A LE HAILLAN sur un terrain de 570 m², Les Villas Girondines vous propose de réaliser cette maison neuve d'une surface de 87 m² habitables avec 3 chambres.
Les Villas Girondines vous propose les prestations suivantes :
- Plan sur-mesure et personnalisé de 2 à 6 chambres
- Mode de chauffage au choix
- Grands choix d'équipements et de prestations
- Matériaux de qualité selon les normes en vigueur
- Accompagnement dans le choix et l’acquisition du terrain
- Construction conforme à la nouvelle RE 2020
Informations du terrain : Terrain plat situé au calme, proche des commodités et des écoles. Le terrain est viabilisé et cloturé.
Demandez une étude gratuite et personnalisée de votre projet de construction !
Contactez Pascal ROCHE au 05 57 10 05 65 (Les Villas Girondines - Agence de St Jean-d'Illac).
Prix avec assurance dommages-ouvrage comprise, avec VRD, terrain viabilisé, frais de notaire non compris, frais divers non compris. Terrain sélectionné et vu pour vous sous réserve de disponibilité et au prix indiqué par notre partenaire foncier. Conditions et visuels non contractuels.
En bref
- Modèle présenté : MIMOSA 87
- Surface : 87 m²
- Pièces : 4
- Chambres : 3
- Garage : 0 m2
- Commune : 33185 Le Haillan
- Surface terrain : 570 m²
- En lotissement : non
- Prix : 335 690 €
Demander une étude gratuite personnalisée


