Projet de construction d'une maison 87 m² avec terrain à SAINT-AUBIN-DE-MEDOC (33)
Projet de construction d'une maison 87 m² avec terrain à SAINT-AUBIN-DE-MEDOC (33)
Description
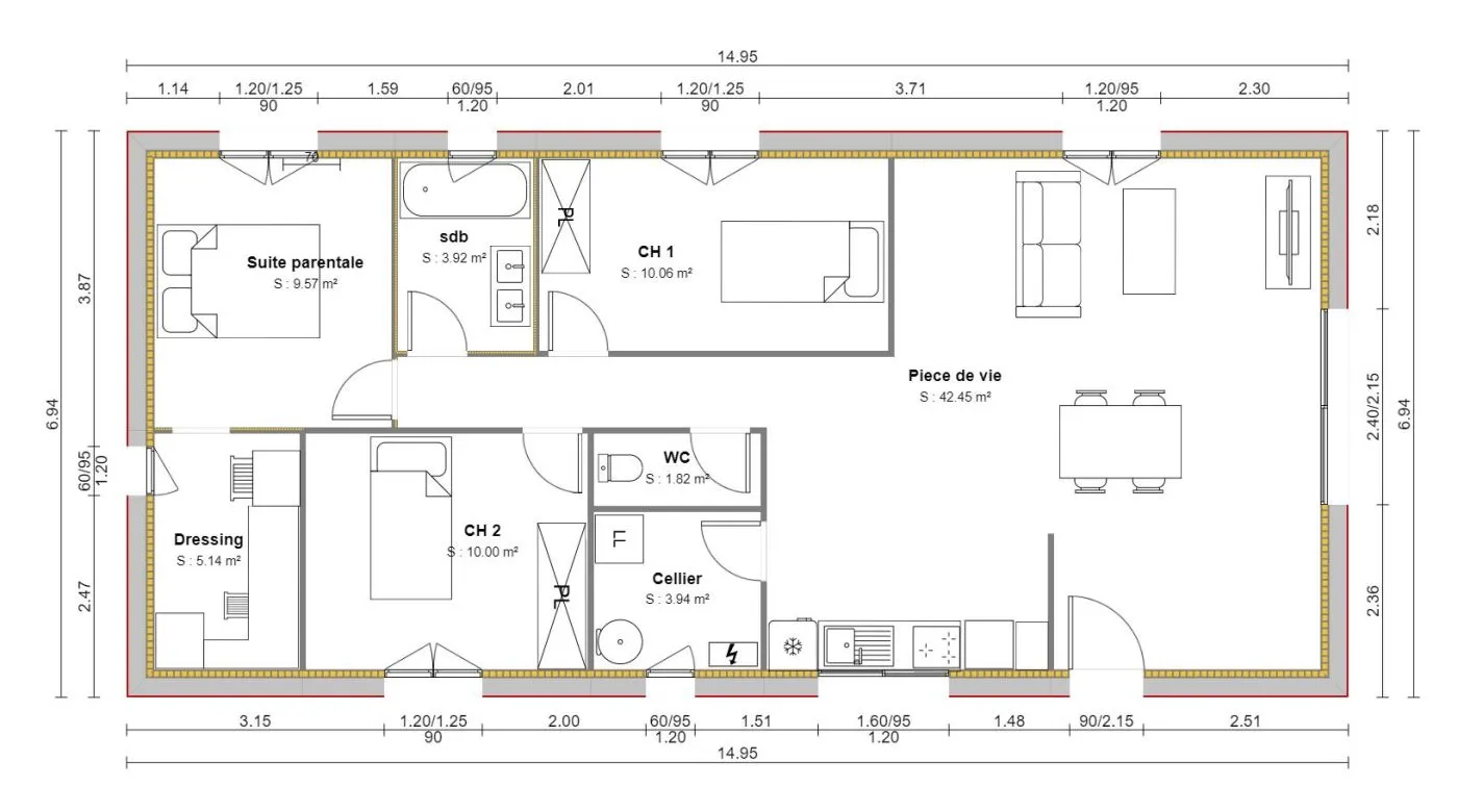
A SAINT-AUBIN-DE-MEDOC sur un terrain de 548 m², Les Villas Girondines vous propose de réaliser cette maison neuve d'une surface de 87 m² habitables avec 2 chambres.
Les Villas Girondines vous propose les prestations suivantes :
- Plan sur-mesure et personnalisé de 2 à 6 chambres
- Mode de chauffage au choix
- Grands choix d'équipements et de prestations
- Matériaux de qualité selon les normes en vigueur
- Accompagnement dans le choix et l’acquisition du terrain
- Construction conforme à la nouvelle RE 2020
Informations du terrain : Rare terrain en retour à proximité immédiate du Lycée et à 30 minutes de Lacanau , venez découvrir votre futur nid douillet dans un havre de verdure ,au calme en lisière de forêt profitez d une pièce à vivre spacieuse et agréable, 3 Chambres, et un grand jardin complète ce bien.
Demandez une étude gratuite et personnalisée de votre projet de construction !
A SAINT-AUBIN-DE-MEDOC sur un terrain de 548 m², Les Villas Girondines vous propose de réaliser cette maison neuve d'une surface de 87 m² habitables avec 2 chambres.
Les Villas Girondines vous propose les prestations suivantes :
- Plan sur-mesure et personnalisé de 2 à 6 chambres
- Mode de chauffage au choix
- Grands choix d'équipements et de prestations
- Matériaux de qualité selon les normes en vigueur
- Accompagnement dans le choix et l’acquisition du terrain
- Construction conforme à la nouvelle RE 2020
Informations du terrain : Rare terrain en retour à proximité immédiate du Lycée et à 30 minutes de Lacanau , venez découvrir votre futur nid douillet dans un havre de verdure ,au calme en lisière de forêt profitez d une pièce à vivre spacieuse et agréable, 3 Chambres, et un grand jardin complète ce bien.
Demandez une étude gratuite et personnalisée de votre projet de construction !
Contactez Julien ROUX au 06 08 04 47 56 (Les Villas Girondines - Agence de St Jean-d'Illac).
Prix avec assurance dommages-ouvrage comprise, avec VRD, terrain viabilisé, frais de notaire compris, frais divers non compris. Terrain sélectionné et vu pour vous sous réserve de disponibilité et au prix indiqué par notre partenaire foncier. Conditions et visuels non contractuels.
En bref
- Modèle présenté : tiarre
- Surface : 87 m²
- Pièces : 4
- Chambres : 2
- Garage : m2
- Commune : 33160 Saint-Aubin-de-Médoc
- Surface terrain : 548 m²
- En lotissement : non
- Prix : 375 105 €
Demander une étude gratuite personnalisée

