Projet de construction d'une maison 140.56 m² avec terrain à SAUCATS (33)
Projet de construction d'une maison 140.56 m² avec terrain à SAUCATS (33)
Description
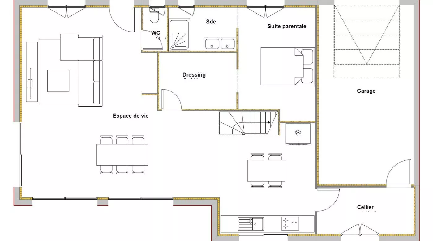
A SAUCATS sur un terrain de 730 m², Les Villas Girondines vous propose de réaliser cette maison neuve d'une surface de 140.56 m² habitables avec 4 chambres dont une suite parentale avec dressing et salle d'eau, 1 grande pièce de vie largement ouverte vers le jardin et intégrant une cuisine , 1 salle de bains ,1 cellier et 1 garage.
Les Villas Girondines vous propose les prestations suivantes :
- Plan sur-mesure et personnalisé de 2 à 6 chambres
- Mode de chauffage au choix
- Grands choix d'équipements et de prestations
- Matériaux de qualité selon les normes en vigueur
- Accompagnement dans le choix et l’acquisition du terrain
- Construction conforme à la nouvelle RE 2020.
Informations du terrain : Terrain plat et rectangulaire, au calme. Proche du centre et des commerces.
Demandez une étude gratuite et personnalisée de votre projet de construction !
A SAUCATS sur un terrain de 730 m², Les Villas Girondines vous propose de réaliser cette maison neuve d'une surface de 140.56 m² habitables avec 4 chambres dont une suite parentale avec dressing et salle d'eau, 1 grande pièce de vie largement ouverte vers le jardin et intégrant une cuisine , 1 salle de bains ,1 cellier et 1 garage.
Les Villas Girondines vous propose les prestations suivantes :
- Plan sur-mesure et personnalisé de 2 à 6 chambres
- Mode de chauffage au choix
- Grands choix d'équipements et de prestations
- Matériaux de qualité selon les normes en vigueur
- Accompagnement dans le choix et l’acquisition du terrain
- Construction conforme à la nouvelle RE 2020.
Informations du terrain : Terrain plat et rectangulaire, au calme. Proche du centre et des commerces.
Demandez une étude gratuite et personnalisée de votre projet de construction !
Contactez Pascal ROCHE au 05 57 10 05 65 (Les Villas Girondines - Agence de St Jean-d'Illac).
Prix avec assurance dommages-ouvrage comprise, hors VRD, viabilisation comprise, frais de notaire compris, frais divers non compris. Terrain sélectionné et vu pour vous sous réserve de disponibilité et au prix indiqué par notre partenaire foncier. Conditions et visuels non contractuels.
En bref
- Modèle présenté : COQUELICOT-5CH140
- Surface : 140.56 m²
- Pièces : 6
- Chambres : 5
- Nb salle de bains : 2
- Garage : 23.18 m2
- Commune : 33650 Saucats
- Surface terrain : 730 m²
- En lotissement : non
- Prix : 464 922 €
Demander une étude gratuite personnalisée



